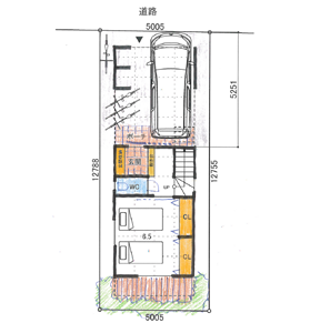
狭小住宅 の間取りプラン
-
1階は4つの物入れ、ウォークインクローゼットのある収納たっぷりの間取りです。
2階のアイランドキッチンは家族がとり囲めるのでコミュニケーションが取りやすく、お料理を楽しめて、配膳が楽な動線です。
家族みんなが活用できるスタディコーナーもあります。
小屋裏は9畳あるので、いろいろ活用できそうですね。規模 地上2階+小屋裏
敷地面積 115.41㎡(34.91坪)
延べ床面積 128.76㎡(38.95坪)
-
狭小2階建て 完全分離型二世帯 敷地面積約34坪 坪庭のあるプラン
完全分離型二世帯として、2つの玄関を少し離して配置した間取りです。
1階のライトコートは洋室とDK両方に隣接しており、どちらからも行き来できるプランです。また、カーポート1台分と坪庭を2箇所に配置しています。
2階のキッチンは、シンクとコンロを別々のキッチン台に取り付け、セパレートタイプに。11.5畳の屋根裏部屋は大容量の収納スペースになります。規模 地上2階+ルーフフロアー
敷地面積 113.11㎡(34.22坪)
延べ床面積 89.42㎡(27.05坪)
-
狭小2階建て 完全分離型二世帯 敷地面積約34坪 中庭のあるプラン
完全分離型二世帯として、玄関を並べて2つ配置した間取りです。
基本的には、1階2階ともに、洋室1室とDKの間取りですが、1階はI型キッチン、2階はカウンタータイプの対面式キッチンを採用し、2つのキッチンプランで表情を変えています。最上階には大物家具や家電の収納に便利な大容量の屋根裏部屋を設けています。規模 地上2階
敷地面積 113.11㎡(34.22坪)
延べ床面積 90.26㎡(27.30坪)
-
狭小3階建て 完全分離型二世帯 敷地面積約19坪 1階は選べる間取り
完全分離型二世帯として玄関を2方向に構えた間取りです。
1階は選べる間取りプランとして1つは駐車場、玄関からキッチンに繋がっているコンパクトなプランです。
食材など買物して帰宅後、キッチンにすぐに荷物を置けるので便利ですね。
もう1つの1階プランは、駐車場や物干し場をなくした分、広さをLDKにあてた間取りです。
2階は子世帯のLDK、3階は子世帯の寝室としておすすめの間取りとなっています。規模 地上3階
敷地面積 65.35㎡(19.77坪)
延べ床面積 108.74㎡(32.89坪)
-
狭小3階建て 完全分離型二世帯 敷地面積約19坪 ルーフバルコニー
完全分離型二世帯住宅として、2方向に玄関を構えています。
広々ルーフバルコニーやウッドデッキなど家族の憩いの場として活用できる間取りです。
1階は和室とDKと2階はLDKがあります。規模 地上3階
敷地面積 65.35㎡(19.77坪)
延べ床面積 127.96㎡(38.71坪)
-
地階+2階建て 敷地面積約23坪 グレーチングバルコニー選べる2階間取り 3LDK
1階は奥行きのある押入れ、玄関収納など2つの洋室があります。
2階は風と光が入るグレーチングバルコニー、家族の様子が見えるカウンターキッチンや読書などができる書斎コーナーがあります。規模 地上2階+地階1階
敷地面積 77.30㎡(23.38坪)
延べ床面積 107.46㎡(32.51坪)
-
地階+2階建て 敷地面積約23坪 グレーチングバルコニー 3LDK
ファミリーウォークインクローゼットなどの収納スペースを地階に固めているので、大きな物や重たい荷物なども出し入れするのに便利です。
2階はLDKからつながった場所にグレーチングバルコニーがあるため、光や風が抜けて心地よい空間です。規模 地上2階+地階1階
敷地面積 77.30㎡(23.38坪)
延べ床面積 104.87㎡(31.72坪)
-
狭小2階建て 敷地面積約21坪 小屋裏を収納と寝室に活用 3LDK
玄関脇に大きなシューズクロークがあるので、ベビーカーなど大きな物も置けますね。
寝室には2つのクローゼット、物入れを配置しているため分けて収納できます。
カウンターキッチンからLDK全体がよく見える間取りです。
小屋裏を2つの洋室とウォークインクローゼットにした間取りです。
広さがあるので洋服などたっぷりしまうことができますね。
また廊下にも物入れがあるため普段使わないものを収納できます。規模 地上2階+小屋裏
敷地面積 70.20㎡(21.24坪)
延べ床面積 114.27㎡(34.57坪)
-
狭小2階建て+小屋裏 敷地面積約21坪 たっぷりの収納 3LDK
玄関から入って土間収納のシューズクロークがあります。
靴だけでなく、ゴルフバッグやベビーカーなど大きな荷物も収納できるので便利ですね。
2つの寝室にはそれぞれクローゼットがあります。規模 地上2階+小屋裏
敷地面積 70.20㎡(21.24坪)
延べ床面積 81.35㎡(24.61坪)
-
狭小3階建て 敷地面積約32坪 2つのウォークインクローゼット付 5LDK
2台の車がゆったり駐車できるスペースを確保しています。
玄関ポーチからウッドデッキにも繋がっています。
たっぷり入るウォークインクローゼットが約7帖の主寝室に設けています。
キッチンの奥にはパントリーとしてたっぷり収納できるウォークインクローゼットがあります。
約9帖のバルコニーはたっぷり洗濯物を干せますね。規模 地上3階+ペントハウス
敷地面積 106.44㎡(32.20坪)
延べ床面積 138.48㎡(41.89坪)
-
狭小3階建て 敷地面積約32坪 お子様の遊び場もあるペントハウス 5LDK
駐車場は2台の車をゆったり置けるスペースを確保しています。
ゆったりした玄関ポーチやホール脇にはシューズクローゼット、主寝室の中にはウォークインクローゼットを設けています。
全体的にゆったりとした間取りです。
アイランドキッチンで出入りしやすく家族がお料理のお手伝いしやすい設計です。LDKには景色を眺めながら読書やお子様のお勉強スペースに活用できるカウンターがあります。規模 地上3階+ペントハウス
敷地面積 106.44㎡(32.20坪)
延べ床面積 149.44㎡(45.21坪)
-
狭小3階建て 敷地面積約20坪 吹き抜け バルコニー付 3LDK
洋室には2つのクローゼットがあるため、分けて収納できます。
カウンターキッチンからLDKの全体を見渡せ、家族とのコミュニケーションがはかりやすい設計です。
リビング上には上部吹き抜けにしているので開放感があります。規模 地上3階
敷地面積 68.96㎡(20.86坪)
延べ床面積 90.35㎡(27.33坪)
-
狭小3階建て 敷地面積約20坪 ユーティリティ ルーフバルコニー付 3LDK
約7帖の洋室にたっぷり収納できるウォークインクローゼットを設けています。
広々ルーフバルコニーが見える開放的な2階LDKです。
キッチン奥にはユーティリティ(家事室)として自由に活用できる場を設けています。
中心に吹き抜けを入れた開放的な住まいです。
2階のLDKの様子がお部屋から見えるので安心ですね。規模 地上3階
敷地面積 68.96㎡(20.86坪)
延べ床面積 98.33㎡(29.74坪)
-
狭小2階建て 敷地面積約30坪 旗竿地を活かしたプラン 駐車場 3LDK
狭小旗竿地の間取りプランです。
旗竿地にはめずらしく、1階にキッチンとリビングを配置しています。
玄関先には愛犬の足洗い場を設け、お散歩から帰ってきた時にすぐにきれいにできるので、
土や汚れを気にせず、めいっぱい遊びに行くことができます。
道路に面した通路には、旗竿地の土地形状を活かし、車と自転車を停めるスペースを確保しました。規模 地上2階
敷地面積 104.23㎡(31.53坪)
延べ床面積 101.22㎡(30.62坪)
-
狭小3階建て 敷地面積約19坪 インナーガレージ付 陸屋根のあるプラン 3LDK
インナーガレージなので雨に濡れず乗り降りができます。
クローゼットを2つ設けた主寝室はダブルベッドも置けるほどのスペースです。
キッチン、浴室などの水廻りを北側にまとめた間取りです。カウンターキッチンからLDKを見渡せます。規模 地上3階
敷地面積 63.41㎡(19.18坪)
延べ床面積 90.25㎡(27.30坪) -
狭小3階建て 完全分離型二世帯 敷地面積約30坪 1階は選べる間取り
2つの玄関にはそれぞれ玄関収納を設けているので、靴などをすっきり収納できますね。
1階は2つの玄関の位置はそのままに、その他の間取りは3つのプランからお選びいただけます。
いすれも約8~9帖のダイニングキッチンです。
2階はワンフロアをLDKにあてた贅沢な間取りです。
広々バルコニーもあるので家族でのホームパーティも楽しめそうですね。規模 地上3階
敷地面積 65.00㎡(19.66坪)
延べ床面積 100.40㎡(30.37坪)
-
狭小3階建て 敷地面積約18坪 細長い地形を活かした間取りプラン 2LDK
玄関を入ってすぐにある1.5帖の収納や洋室併設の物入れがあるためすっきり暮らせますね。
ダイニングキッチンは吹き抜け天井なので解放感があります。
北側と南側にバルコニーを設けています。
3帖のウォークインクローゼットがあるので洋服やカバンなどたっぷり収納できますね。規模 地上3階
敷地面積 61.95㎡(18.74坪)
延べ床面積 98.95㎡(29.93坪)
-
狭小3階建て 敷地面積約18坪 たっぷり収納できる間取り 2LDK
1.5帖の収納が中心にあるので、大きな荷物や洗面用具などの細々したものまで幅広く収納できます。
2帖の収納があるので、パントリーとして食品などのストックを保管したり、本棚にしたり使い方は自由です。
吹き抜け天井のあるダイニングキッチンは解放感たっぷりです。
3帖のウォークインクローゼットや廊下に物入れがあるため、生活スペースを狭めることなくすっきり暮らせますね。規模 地上3階
敷地面積 61.95㎡(18.74坪)
延べ床面積 98.95㎡(29.93坪)
-
狭小3階建て 敷地面積19坪 たっぷり収納とルーフバルコニー付プラン 2LDK
アイランド型のシンクなので、お料理や水仕事をしながら家族の様子が見えます。
PCコーナーがキッチン向かいにあるので、家事の合間に使うこともできますね。
広々ルーフバルコニーは普段は洗濯物干しスペースに、休日はホームパーティに活用できます。
大容量のウォークインクローゼットは廊下に位置するので、家族みんなで使えて便利です。
洋室は間仕切りすることもできるので、お子様の成長に合わせて子供部屋を作ることができます。
規模 地上3階
敷地面積 63.91㎡(19.33坪)
延べ床面積 91.09㎡(27.55坪)
-
狭小3階建て 敷地面積約11坪 ペントハウス PCカウンター 3LDK ロフト付
玄関収納を土間からホールにかけて設けています。入って正面に水廻りの浴室をまとめています。
LDKにはPCカウンターをリビング側の一角に設けています。
扉はないですが、角に位置しているため落ち着く小部屋のような存在です。
PC作業はもちろん、書類の整理や家計簿作成などさまざまな用途に使えますね。規模 地上3階+ペントハウス
敷地面積 37.43㎡(11.32坪)
延べ床面積 78.66㎡(23.79坪)





















