狭小3階建て 完全分離型二世帯 敷地面積約30坪 1階は選べる間取り
1階は水廻りの位置など選べるプラン
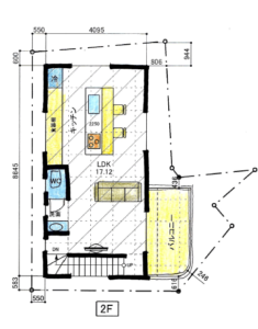
大容量のウォークインクローゼットや広々バルコニー付
大容量のウォークインクローゼットや広々バルコニー付
間取り概要
| 規模 | 地上3階 |
|---|---|
| 敷地面積 | 65.00㎡(19.66坪) |
| 床面積 | 1階:38.71㎡ 2階:35.40㎡ 3階:26.29㎡ |
| 延べ床面積 | 100.40㎡(30.37坪) |













