高気密・高断熱の狭小住宅・二世帯住宅の間取りと価格は桧山建工へ:大田区・目黒区・世田谷区

telmenu

狭小2階建て 敷地面積約25坪 土地形状を活かしたプラン 3LDK

土地形状を活かして使いやすい動線にしたプラン
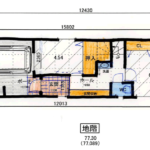
1階間取り
テラス(庭) テラス(庭)玄関 ポーチ 玄関収納 浴室 洗面所 WC キッチン LDK 
土地の形状を活かしたテラスの庭、アイランドキッチンのある1階フロアです。
2階間取り
ホール バルコニーx2 寝室 CLx4 WC
バルコニーを2方向につけた寝室、子供部屋の2階フロアです。
間取り概要
規模 地上2階
敷地面積 83.61㎡(25.29坪)
床面積 1階:41.40㎡
2階:41.40㎡
延べ床面積 82.80㎡(25.05坪)
20坪以下2,000万円以下間取りプラン集プレゼント
ページTOPへ